Leave a Message

Thank you for your message. We will be in touch with you shortly.

Property Description

Coastal Charm Meets Modern Comfort - 5BR/3BA Ocean Isle Beach Retreat

Welcome to your dream getaway on Ocean Isle Beach! This beautifully remodeled 5-bedroom, 3-bathroom second-row beach home blends timeless coastal charm with modern upgrades & is just steps from the sand and surf, with two public beach access points nearby. A rare find for boaters, the property offers ample parking and dedicated space for a large boat and trailer along the side of the home.

Recent improvements provide style and peace of mind, including a new fortified roof, new dishwasher, fresh interior paint, and all-new flooring throughout.

Inside, the spacious living room is filled with natural light, highlighted by a soaring vaulted ceiling and brand-new solar-powered skylights. The updated kitchen features stainless steel appliances, white cabinetry with brass hardware, oversized subway tile backsplash, and granite countertops - perfect for entertaining and gathering with friends.

Outdoor living is just as inviting, with front and back decks designed for ocean breezes, a convenient outdoor shower, and a generously sized backyard ideal for building your own private large pool. Additional storage ensures plenty of room for all your beach gear.

Whether you're seeking a second home, an investment property with vacation rental potential, or a full-time island retreat, this turnkey home checks every box. Don't miss the opportunity to claim your slice of paradise on Ocean Isle Beach!

Overview

Property Status
Sold
Lot Size
4,879 Sq.Ft.
MLS ID
100528713
Property Type
Residential
Year Built
1983

Features & Amenities

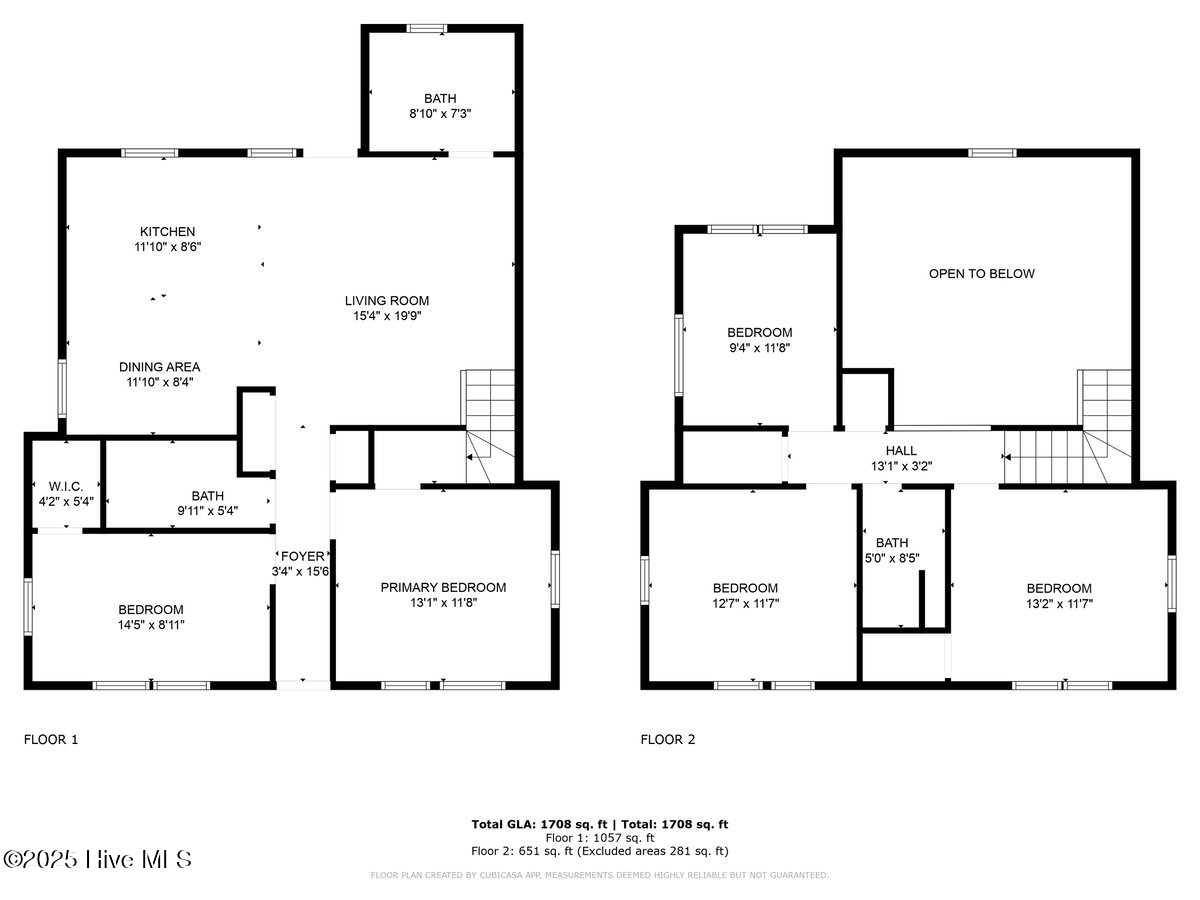
Total Area
1,708 Sq.Ft.
Water Frontage
None
View Description
Water
Stories
2
Water Source
Municipal Water
Utilites
Sewer Connected, Water Connected
Pool
None
Roof
Architectural Shingle
Parking
Gravel, Off Street, On Site, Unpaved
Heat Type
Electric, Heat Pump
Air Conditioning
Central Air
Fireplace
None
Appliances
Electric Oven, Electric Cooktop, Built-In Microwave, Washer, Refrigerator, Dryer, Disposal, Dishwasher
Other Interior Features
Vaulted Ceiling(s), Solid Surface, Ceiling Fan(s), Furnished, Walk-in Shower
Sewer
Municipal Sewer
Substructure
Other, Raised
Disability Features
None
HOA Amenities
No Amenities
Security Features
Smoke Detector(s)
Other Exterior Features
Outdoor Shower
Elementary School
Union
Middle School
Shallotte Middle
High School
West Brunswick
School District
Brunswick County Schools
Sales Price
$875,000
Real Estate Tax
$2,778/yr
Zoning
Oi-R-1

Downloads

393 E Second Street

Schedule a Tour

We would love to help you see this beautiful home! As a full-service brokerage, we can help you tour. Please submit an offer, and answer questions about the buying process.

Enter a valid email

Thank you

for your interest in 393 E Second Street, Ocean Isle Beach, NC 28469

back to page
393 E Second Street
Navigate

I'm Interested In

393 E Second Street

or
  • CallEddie McNeely

    License #137237

    910.880.0111
  • Follow Us On Instagram