Leave a Message

Thank you for your message. We will be in touch with you shortly.

Property Description

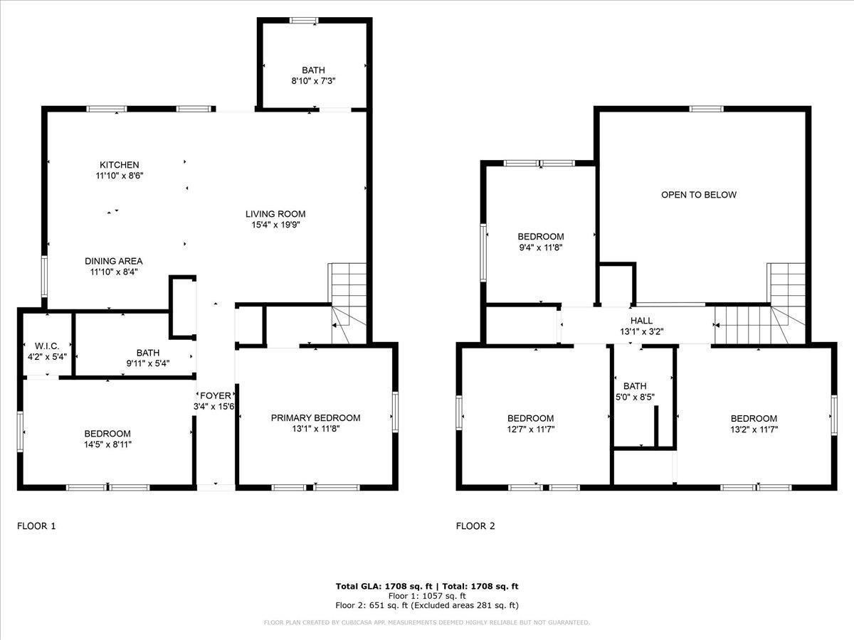
Coastal Charm Meets Modern Comfort - 5BR/3BA Ocean Isle Beach Retreat Welcome to your dream getaway on Ocean Isle Beach! This beautifully remodeled 5-bedroom, 3-bathroom second-row beach home blends timeless coastal charm with modern upgrades & is just steps from the sand and surf, with two public beach access points nearby. A rare find for boaters, the property offers ample parking and dedicated space for a large boat and trailer along the side of the home. Recent improvements provide style and peace of mind, including a new fortified roof, new dishwasher, fresh interior paint, and all-new flooring throughout. Inside, the spacious living room is filled with natural light, highlighted by a soaring vaulted ceiling and brand-new solar-powered skylights. The updated kitchen features stainless steel appliances, white cabinetry with brass hardware, oversized subway tile backsplash, and granite countertops - perfect for entertaining and gathering with friends. Outdoor living is just as inviting, with front and back decks designed for ocean breezes, a convenient outdoor shower, and a generously sized backyard ideal for building your own private large pool. Additional storage ensures plenty of room for all your beach gear. Whether you're seeking a second home, an investment property with vacation rental potential, or a full-time island retreat, this turnkey home checks every box. Don't miss the opportunity to claim your slice of paradise on Ocean Isle Beach!

Overview

Property Status
Active Under Contract
Lot Size
4,791.6 Sq.Ft.
MLS ID
2521513
Property Type
Residential
Year Built
1983

Features & Amenities

Total Area
1,708 Sq.Ft.
Architecture Styles
Raised Beach
View Description
Ocean
Stories
2
Water Source
Public
Utilites
Electricity Available, Other, Sewer Available, Water Available
Lot Features
City Lot, Irregular Lot, Island
Parking
Driveway, Boat
Heat Type
Central, Electric
Air Conditioning
Central Air
Other Interior Features
Furnished, Split Bedrooms, Skylights, Bedroom on Main Level, Stainless Steel Appliances, Solid Surface Counters
Substructure
Raised
Security Features
Smoke Detector(s)
Other Exterior Features
Deck, Storage
Elementary School
Union Primary School
Middle School
Shallotte Middle School
High School
West Brunswick High School
Sales Price
$894,000
Zoning
R1

Downloads

393 E Second St.

Schedule a Tour

We would love to help you see this beautiful home! As a full-service brokerage, we can help you tour. Please submit an offer, and answer questions about the buying process.

Enter a valid email

Thank you

for your interest in 393 E Second St., Ocean Isle Beach, NC 28469

back to page
393 E Second St.
Navigate

Mortgage Calculator

$0,000 Your Payment 20 15 65
$0,000 Your Payment

I'm Interested In

393 E Second St.

or
  • CallTiffany McNeely

    License #221322

    704.962.9777
  • Follow Us On Instagram