Leave a Message

Thank you for your message. We will be in touch with you shortly.

Property Description

Perfectly positioned on the island's west end, this beautifully updated island home offers ocean, Intracoastal Waterway, and salt marsh views along with exclusive access to a private beach entrance reserved for Seaside Street residents - located just seven homes away.

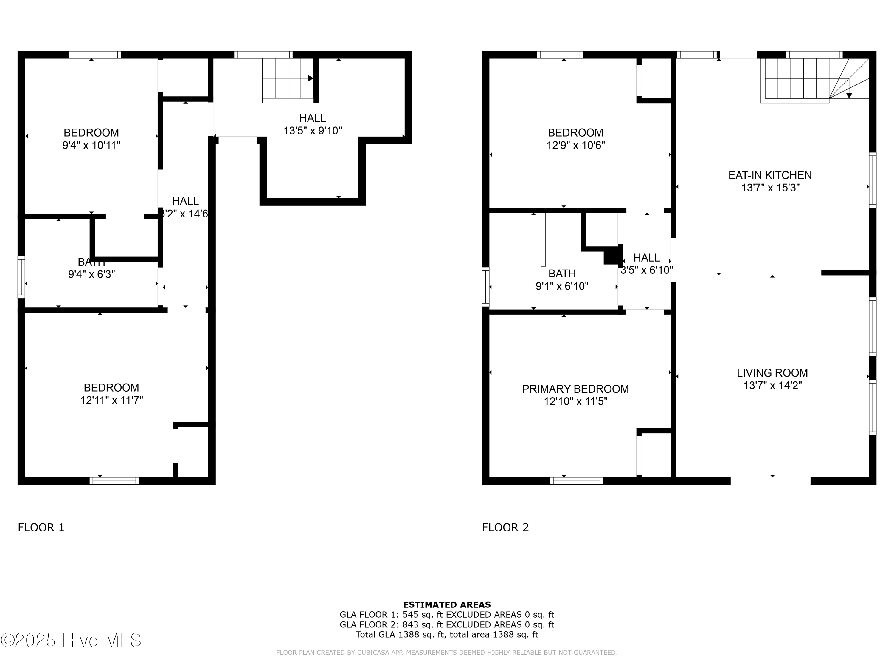
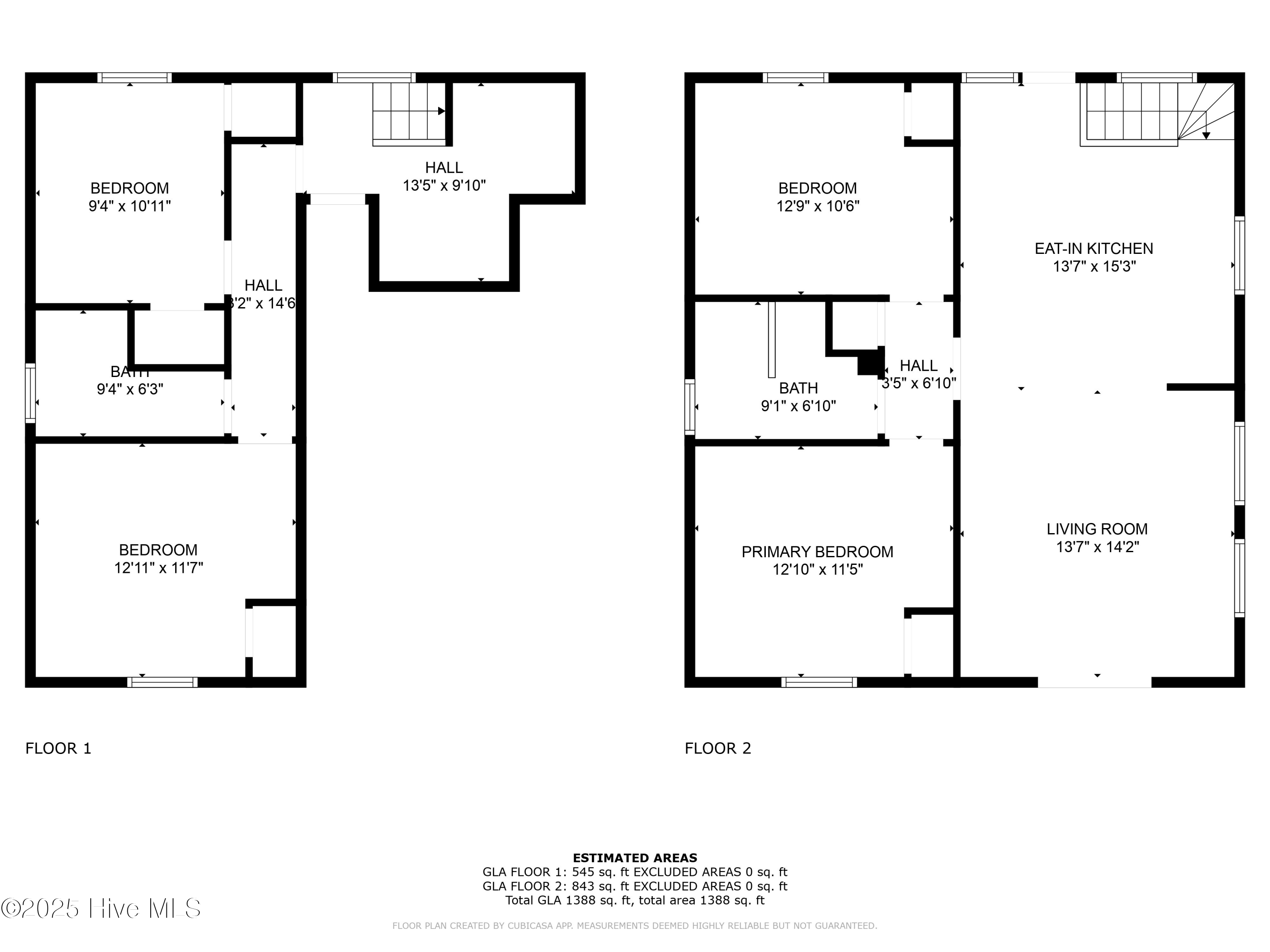
The well designed floor plan provides excellent functionality across two levels. On the first level you'll find two bedrooms including a bunk bed area plus a large bedroom and a shared full bathroom. The second floor features the spacious main living area, modern kitchen, two additional bedrooms, and a shared bathroom along with access to the front and back porches.

The updated kitchen showcases granite countertops, a functional peninsula, ample cabinet storage with under-cabinet lighting, and a custom built-in bench for dining. Adjacent is a screened porch with water views, perfect for coastal breezes and al fresco dining. The living room opens to an additional screened porch and front deck, offering peaceful outdoor spaces.

Practical amenities include an exterior lift for easy luggage transport, a spacious hot/cold outdoor shower, and an oversized garage with abundant storage. Recent updates include a roof replacement (2020 fortified roof) and HVAC update (2022), ensuring worry-free ownership.

The home's cul-de-sac adjacent location ensures privacy with no rear neighbors. Situated on a quiet street with a mix of full-time residences and vacation homes, the property enjoys quick access to local restaurants, shopping, fresh seafood markets, the public boat launch near Holden Beach Bridge, and championship golf courses just minutes away.

With its privileged beach access just a short walk away and premium finishes throughout, this turnkey property delivers the ultimate coastal lifestyle as an investment property, second home, or year-round residence.

Overview

Property Status
For Sale
Lot Size
4,792 Sq.Ft.
MLS ID
100504393
Property Type
Residential
Year Built
1978

Features & Amenities

Total Area
1,388 Sq.Ft.
Water Frontage
None
View Description
ICW View, Marsh View, Ocean, Water
Stories
2
Garage Spaces
1.0
Water Source
Municipal Water
Utilites
Sewer Available, Water Available
Pool
None
Roof
Architectural Shingle
Lot Features
Dead End
Parking
On Site, Paved
Heat Type
Electric, Heat Pump
Air Conditioning
Central Air
Other Interior Features
Solid Surface, Kitchen Island, Ceiling Fan(s), Reverse Floor Plan, Walk-in Shower
Sewer
Municipal Sewer
Substructure
Other, Raised
Disability Features
None
HOA Amenities
No Amenities
Security Features
Smoke Detector(s)
Other Exterior Features
Outdoor Shower
Elementary School
Virginia Williamson
Middle School
Cedar Grove
High School
West Brunswick
School District
Brunswick County Schools
Sales Price
$720,000
Real Estate Tax
$2,382/yr
Zoning
Hb-R-1

Downloads

118 Seaside Street

Schedule a Tour

We would love to help you see this beautiful home! As a full-service brokerage, we can help you tour. Please submit an offer, and answer questions about the buying process.

Enter a valid email

Thank you

for your interest in 118 Seaside Street, Holden Beach, NC 28462

back to page
118 Seaside Street
Navigate
118 Seaside Street
explore in 3d

Mortgage Calculator

$0,000 Your Payment 20 15 65
$0,000 Your Payment

I'm Interested In

118 Seaside Street

or
  • CallEddie McNeely

    License #137237

    910.880.0111
  • Follow Us On Instagram